Bought with Emma Nies
For more information regarding the value of a property, please contact us for a free consultation.
1224 Tucker Drive Lebanon, TN 37087
Want to know what your home might be worth? Contact us for a FREE valuation!

Our team is ready to help you sell your home for the highest possible price ASAP
Key Details
Sold Price $550,000
Property Type Single Family Home
Sub Type Single Family Residence
Listing Status Sold
Purchase Type For Sale
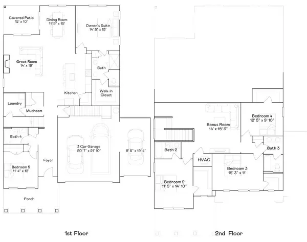
Square Footage 2,858 sqft
Price per Sqft $192
Subdivision Knoll Creek
MLS Listing ID 3039219
Sold Date 11/24/25
Bedrooms 5
Full Baths 4
HOA Fees $50/mo
HOA Y/N Yes
Year Built 2025
Annual Tax Amount $1
Lot Size 0.275 Acres
Acres 0.275
Property Sub-Type Single Family Residence
Property Description
Discover the new Hawthorne plan featuring an oversized 3-car garage in the new Knoll Creek neighborhood with spacious yards! The Hawthorne features brick and hardiboard exterior with covered front porch, the primary suite and guest suite downstairs, a covered rear porch, an open concept kitchen with lots of cabinets and countertop space and a huge island with 42" shaker style cabinetry, quartz tops, tile backsplash, double ovens, gas cooking with vented hood, and stainless steel kitchen appliances. Luxurious primary suite includes oversized walk-in ceramic tile shower with built-in bench seat, tile floor, executive height cabinets, and quartz top. Beautiful LVP flooring throughout the main living areas and on the stair treads, durable LVT flooring in secondary baths and laundry. Elegant features throughout! Tankless water heater, Ring doorbell, Schlage keyless entry, Honeywell WIFI thermostat, gas fireplace, drop zone to keep everything neat and organized, 2" faux wood blinds on operable windows, and so much more! Beautiful location in the desirable Lebanon area, convenient drive to Nashville International Airport.
Location
State TN
County Wilson County
Rooms
Main Level Bedrooms 2
Interior
Interior Features Extra Closets, Smart Thermostat, Walk-In Closet(s), Kitchen Island
Heating Central
Cooling Central Air, Electric
Flooring Carpet, Tile, Vinyl
Fireplaces Number 1
Fireplace Y
Appliance Dishwasher, Disposal, Microwave, Refrigerator, Double Oven, Gas Oven, Gas Range
Exterior
Exterior Feature Smart Lock(s)
Garage Spaces 3.0
Utilities Available Electricity Available, Water Available
Amenities Available Sidewalks, Underground Utilities
View Y/N false
Roof Type Shingle
Private Pool false
Building
Story 2
Sewer Public Sewer
Water Public
Structure Type Fiber Cement,Brick
New Construction true
Schools
Elementary Schools Castle Heights Elementary
Middle Schools Winfree Bryant Middle School
High Schools Lebanon High School
Others
Senior Community false
Special Listing Condition Standard
Read Less

© 2025 Listings courtesy of RealTrac as distributed by MLS GRID. All Rights Reserved.
GET MORE INFORMATION




